Modernes Badezimmer mit klaren Linien und zeitloser Eleganz
Helles Design, moderne Ausstattung - ein Raum zum Ankommen und Wohlfühlen.
ZUSAMMENARBEITEN
Projektbeschreibung
Die Herausforderung
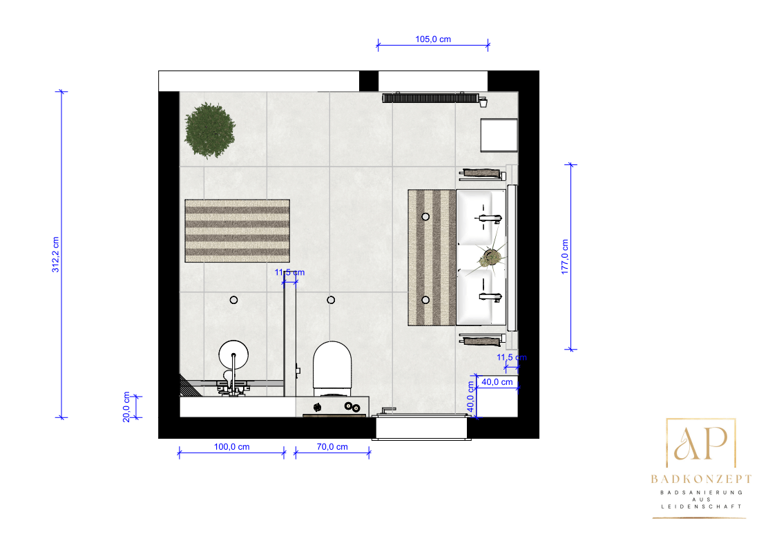
Das alte Bad wirkte überladen und entsprach nicht mehr den heutigen Wohnansprüchen. Ziel war es, durch clevere Planung und moderne Materialien ein offenes, freundliches Ambiente zu schaffen.
Unser Konzept
Wir setzen auf helle, großformatige Fliesen in Natursteinoptik, die dem Raum Weite und Ruhe verleihen. Eine moderne Walk-In-Dusche und minimalistische Ausstattung sorgen für klare Strukturen und ein zeitgemäßes Gesamtbild.
Besondere Details
Großformatige Fliesen  
für eine ruhige, großzügige Raumwirkung.
Zeitlose, schlichte Sanitärkeramik für modernes Design
Dezente Beleuchtung  
für angenehme Lichtstimmungen
Akzente  
in Edelstahl für eine elegante Note
Das Ergebnis
Ein modernes, harmonisches Bad, das Funktionalität und Ästhetik vereint - perfekt für den täglichen Komfort.










